Registrierter Nutzer
 
Registriert seit: 22.04.2011
Beiträge: 2
Tichassa: Offline


Tichassa is on a distinguished road

Beitrag
Datum: 22.04.2011
Uhrzeit: 16:38
ID: 43491



Holzfenster

#1 (Permalink)
Social Bookmarks:

Hallihallo zusammen.

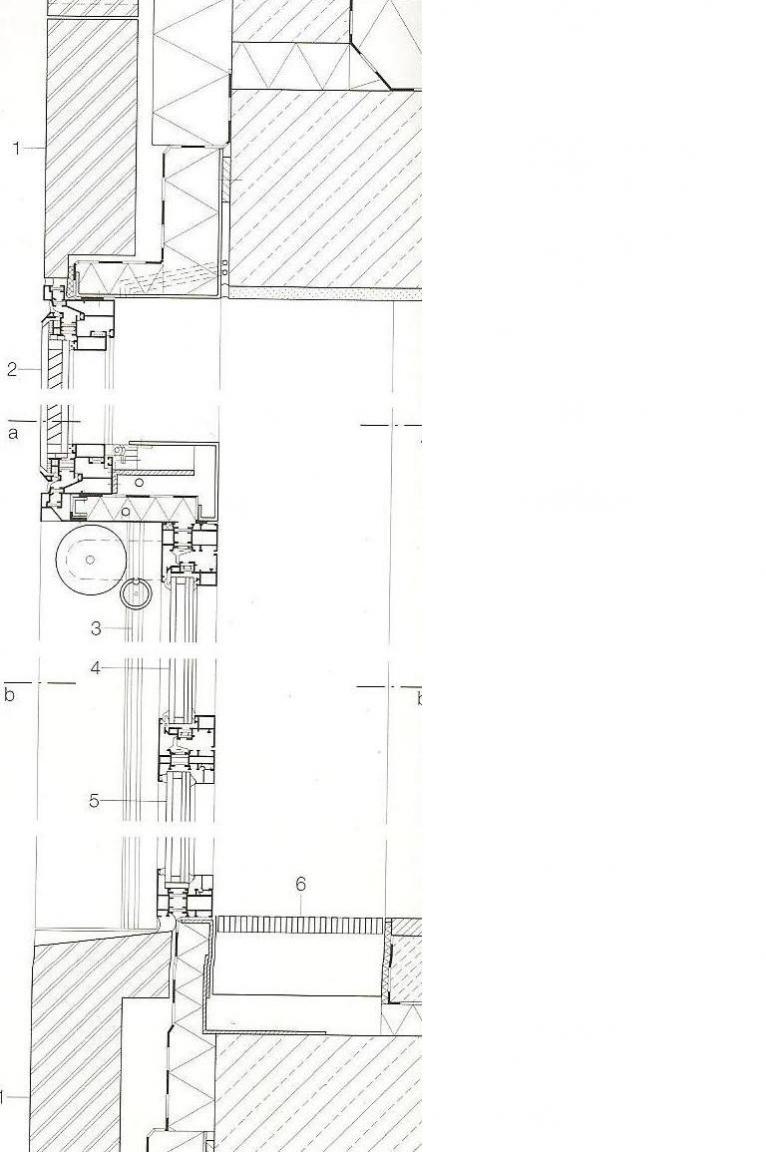
Im Rahmen meines Studiums soll ich ein schon vorhandenes Metallfenster (siehe Bild) in eine Holzkonstruktion (Holzrahmenbau mit Schindeln) umwandeln und davon einen Längs- und Querschnitt zeichnen.
Das Fenster bestitzt eine Festverglasung, darüber ein Drehfenster mit außen angebrachtem Rollo und darüber wiederum ein Kippfenster.
Mein Problem liegt nun darin, dieses Element zwischen Dreh- und Kippflügeln ähnlich in Holzbauweise zu konstruieren.
Ich hoffe ihr könnt mir helfen...
Miniaturansicht angehängter Grafiken
Holzfenster-fenster.jpg  

Mit Zitat antworten
Anzeige

Diese Anzeige wird registrierten Mitgliedern nicht angezeigt.
Du kannst Dich hier kostenlos bei tektorum.de registrieren!

Informationen zur Anzeigenschaltung bei tektorum.de finden Sie hier.




Registrierter Nutzer
 
Registriert seit: 22.04.2011
Beiträge: 2
Tichassa: Offline


Tichassa is on a distinguished road

Beitrag
Datum: 27.04.2011
Uhrzeit: 09:33
ID: 43520



AW: Holzfenster

#2 (Permalink)
Social Bookmarks:

Hallölle...
Hat hier bitte jemand eine Idee oder einen Tip für mich?
Mein Holzrahmen-Wandaufbau besteht übrigens aus folgenden Schichten:
- Holzschindeln aus Lärche
- Konterlattung
- Winddichtung
- Spannplatte (diffusionsoffen)
- Wärmedämmung (WS)
- OS
- Luftdichtung
- Gipsplatte

Mit Zitat antworten
Registrierter Nutzer
 
Registriert seit: 11.04.2011
Beiträge: 113
TappAr: Offline


TappAr will become famous soon enough TappAr will become famous soon enough

Beitrag
Datum: 27.04.2011
Uhrzeit: 11:29
ID: 43522



AW: Holzfenster #3 (Permalink)
Social Bookmarks:

also: du sollst gemäß dem musterfenster ein holzfenster entwickeln und das sitzt in einer hrb-konstruktion mit schindelfassade.

tipp: selbst konstruieren, ist doch klar. fertiges detail nutzt dir nichts.

buchtipp: Holzrahmenbau. Bewhrtes Hausbau-System - Bund Deutscher Zimmermeister

holzrahmenbau, 4. auflage, bund deutscher zimmermeister enthält wesentliche details

vorgehen: ab in die hochschul-bibliothek und entsprechende literatur suchen

Mit Zitat antworten
Registrierter Nutzer
 
Registriert seit: 07.03.2010
Beiträge: 120
Bosmeg: Offline

Ort: Tübingen

Bosmeg is on a distinguished road

Beitrag
Datum: 02.05.2011
Uhrzeit: 21:54
ID: 43610



AW: Holzfenster #4 (Permalink)
Social Bookmarks:

Zu Deinem Wandaufbau

- Holzschindeln aus Lärche
- Konterlattung
- Winddichtung nimm ne DWD-Platte,vllt. 6cm, die ist winddicht und bringt gleichzeitige verbesserte Wärmedämmung. Alternativ Stamisol-Folie ( ist billiger, also nur in der Realität interessant )
- Spannplatte (diffusionsoffen) brauchst Du nicht
- Wärmedämmung (WS)
- OS Ich nehme an Du meinst OSB
- Luftdichtung brauchst Du auch nicht. Die OSB-Platte ist Deine Dampfbremse. Nur beim Elektriker drauf achten, dass er dampdichte Dosen in die Aussenwände einbaut.
- Gipsplatte


Jetzt versteh ich ehrlich gesagt nur den Rest nicht so ganz. Was meinst Du mit "ein Fenster umwandeln" und mit "ähnlich in Holzbauweise zu konstruieren" ???

Mit Zitat antworten
Anzeige

Diese Anzeige wird registrierten Mitgliedern nicht angezeigt.
Du kannst Dich hier kostenlos bei tektorum.de registrieren!

Informationen zur Anzeigenschaltung bei tektorum.de finden Sie hier.




Antwort

tektorum.de ist ein Projekt von archinoah.de - Architekturportal und Forum für Architektur




SEO by vBSEO
Copyright ©2002 - 2025 tektorum.de®