Registrierter Nutzer
 
Registriert seit: 09.01.2016
Beiträge: 1
Bryso: Offline


Bryso is on a distinguished road

Beitrag
Datum: 09.01.2016
Uhrzeit: 02:30
ID: 55114



Grundriss für ein 2,5-geschossiges Haus

#1 (Permalink)
Social Bookmarks:

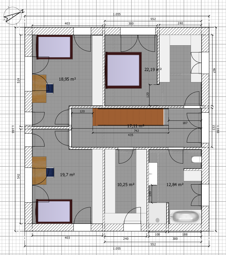
Wir tüfteln schon seit längerem an unserem Grundriss. Wir sind uns nicht ganz sicher, ob wir uns nicht evtl. irgendwo verrannt haben oder wir den größten Misten planen, daher hier einfach mal die Frage, ob vielleicht jemand seine Meinung abgeben möchte und evtl. Verbesserungsvorschläge hat oder ob das schon so passt?

Es sollen 2 Vollgeschosse plus Satteldach mit 35 Grad Neigung werden. Das Dachgeschoss dient als Kellerersatz, Fitnessbereich, usw. - es wird Treppe über Treppe eine Treppe hoch zum DG geben.

Der Raum im EG plan-rechts-unten ist der Technik-/HAR-/Abstellraum. Im Og plan-mitte-unten ist ein separater HWR geplant für WM, TR, Wäscheständer, Staubsauger, etc.

Der Garten ist Richtung Süden (Kinderzimmer, Wohnzimmer, Essbreich), Eingang Richtung Norden. Einfach mal eure Meinung loswerden...

Im Anhang Grundriss für EG, OG und DG.
Miniaturansicht angehängter Grafiken
-0401-eg.png   -0401-dg.png   -0401-og.png  

Mit Zitat antworten
Anzeige

Diese Anzeige wird registrierten Mitgliedern nicht angezeigt.
Du kannst Dich hier kostenlos bei tektorum.de registrieren!

Informationen zur Anzeigenschaltung bei tektorum.de finden Sie hier.




Antwort
Ähnliche Themen
Thema Autor Architektur-Themenbereiche Antworten Letzter Beitrag
Haus auf Zeit Blumenschein Café 4 30.05.2011 16:28
Haus Visualisierung Nataliia Khirna Präsentation & Darstellung 7 26.04.2010 13:31
Haus in der Bretagne MMM Konstruktion & Technik 0 11.08.2008 08:40
Haus vs. Huette leunam andere Themen 4 07.09.2006 07:40
Schwimmendes Haus Joe Bauten & Planer 12 10.06.2006 20:18
 

tektorum.de ist ein Projekt von archinoah.de - Architekturportal und Forum für Architektur




SEO by vBSEO
Copyright ©2002 - 2025 tektorum.de®